Property Detail

7565 23rd Street

Westminster CA 92683

$1,675,000

Status: Active

Property Details

Description

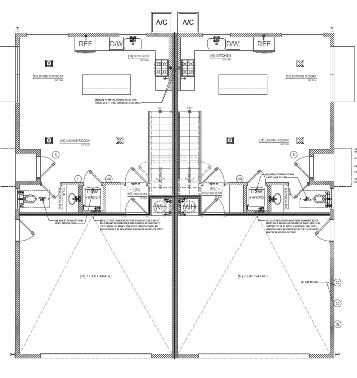
Rare Owner/Developer opportunity to build an entitled/permitted project for a duplex and an ADU in Westminster (Zoned R2). Each unit is separately metered for water, electricity and gas making management a breeze. Each duplex unit was intelligently designed to maximize space, utility, functionality and comfort, including 10 ceilings on both the 1st and 2nd floors serving as grand design features while doubling as additional overhead storage space; 1st floor guest powder room for convenience and 2nd floor privacy; interior laundry closet; spacious open common areas with a large kitchen island; 1st floor mudroom; and attached 2-car garage. The 2nd floor of each duplex unit has a primary bedroom with an en suite bathroom, walk-in closet and balcony. The 2 secondary bedrooms (1 with a balcony) have extensive closet space and share a Jack-&-Jill bathroom with 2 separate vanity areas to accommodate each secondary bedroom. The 799 sqft ADU, also with 10 ceilings, was efficiently designed for 2 bedrooms, 2 bathrooms, almost 13 of closet/storage space in each bedroom, and an interior laundry closet. Seller will delay construction for 30 days to sell the property. However, Seller will start construction after 30 days and will still consider offers, but the price will be adjusted depending on the stage of construction.

Map Location

Listing provided courtesy of Tumy Carter of Tumy Carter, Broker. Last updated . Listing information © 2025 SANDICOR.

john Doe

Mary Afzali

DRE# 02206927
Inquire Now
admin Real estate 9:00 AM - 5:00 PM 9:00 AM - 5:00 PM 9:00 AM - 5:00 PM 9:00 AM - 5:00 PM 9:00 AM - 6:00 PM 9:00 AM - 5:00 PM 9:00 AM - 5:00 PM https://static.royacdn.com/Site-1bceb400-429d-44f8-893a-6dc85e5715bb/Assets/Mary_Afzali_img_forAboutPage.jpg realtor # # # https://static.royacdn.com/Site-1bceb400-429d-44f8-893a-6dc85e5715bb/Assets/Mary_Afzali_img_forAboutPage.jpg