Property Detail

2068 Camino Culebra

Vista CA 92084

$1,799,000

Status: Active

Property Details

Description

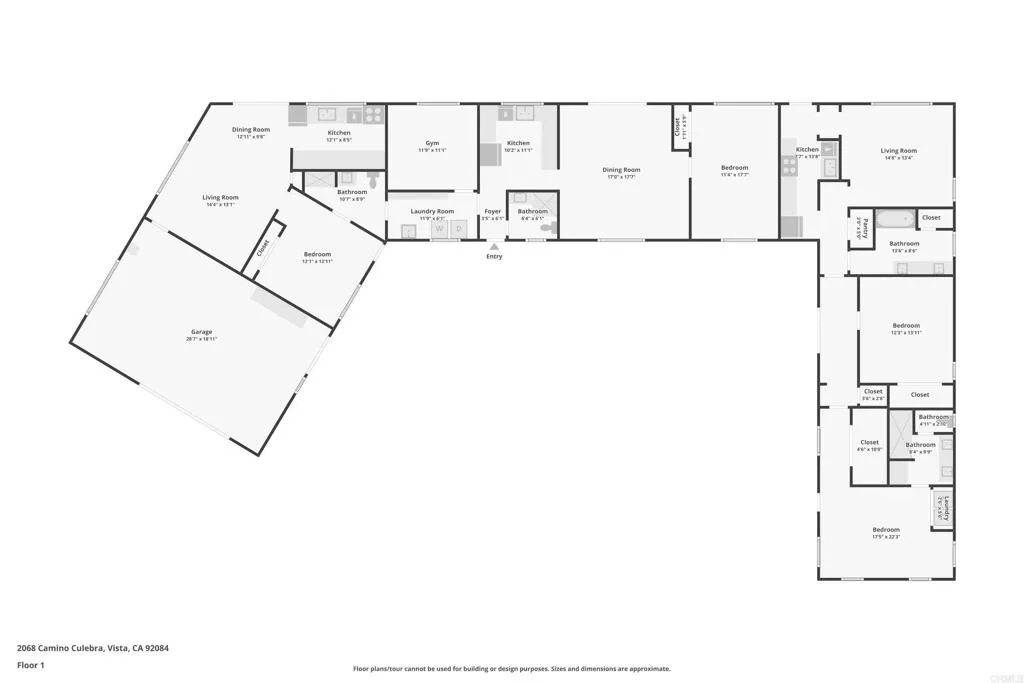
Spectacular panoramic OCEAN and mountain views await you from this single story remodeled home on 1.73 acres! Tastefully sectioned into 3 separate living units, each with an updated kitchen, new appliances, A/C, ocean views and own entrances, perfect for multigenerational living or rental income. Enjoy endless sweeping views from every room. Features include updated LED lighting throughout, whole house water filtration system, owned solar and solar attic fan, upgraded electrical system, 2 new Bosch electric 40 gallon water heaters, new ceiling fans, new satin finish elastomeric exterior paint designed for block and stucco, a new large storage building and new parking spaces, privacy fences and walkways. 220 volt added to the oversized 2 car garage for EV use. Units A & B are each 1BR/1BA approx. 750sf with a shared laundry with tons of storage and workout room between the 2 units. Unit C is 2BR/2BA with own laundry. Enjoy breathtaking sunsets on your private patio surrounded by natural landscaping and wildlife. Fully fenced with 3 entrances, RV/boat parking and plenty of room for all your toys. Experience the rural lifestyle and wonderful Vista climate with restaurants, hiking, shopping entertainment, pickleball at Brengle Terrace and so much more!

Map Location

Listing provided courtesy of Jamie Gilman of First Team Real Estate. Last updated . Listing information © 2025 SANDICOR.

john Doe

Mary Afzali

DRE# 02206927
Inquire Now
admin Real estate 9:00 AM - 5:00 PM 9:00 AM - 5:00 PM 9:00 AM - 5:00 PM 9:00 AM - 5:00 PM 9:00 AM - 6:00 PM 9:00 AM - 5:00 PM 9:00 AM - 5:00 PM https://static.royacdn.com/Site-1bceb400-429d-44f8-893a-6dc85e5715bb/Assets/Mary_Afzali_img_forAboutPage.jpg realtor # # # https://static.royacdn.com/Site-1bceb400-429d-44f8-893a-6dc85e5715bb/Assets/Mary_Afzali_img_forAboutPage.jpg