Property Detail

23703 Oak Circle

Newhall CA 91321

$895,000

Status: Active

Property Details

Description

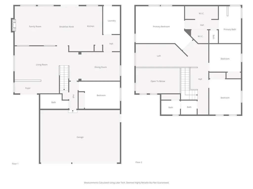
Located on a peaceful cul-de-sac in the desirable Lantana Hills community of Newhall, this beautifully maintained residence offers the perfect balance of space, comfort, and modern updates. Built in 2002, it features approximately 2,756 square feet of living space on a generous 7,364 square foot lot. The interior is filled with natural light thanks to high ceilings and expansive windows throughout. The main level is ideal for both everyday living and entertaining, with engineered hardwood flooring and a thoughtfully upgraded kitchen that includes quartz countertops, custom cabinetry, and premium Thermador appliances. The kitchen opens directly to a spacious living area, creating a seamless and inviting layout. A downstairs bedroom with an adjacent updated bathroom provides a perfect guest suite or flexible private quarters. Just behind the kitchen, a dedicated laundry room offers extensive storage and access to the backyard for added functionality and convenience. Upstairs, a large open loft offers versatility for a home office, media room, or creative space. The primary suite serves as a private retreat, complete with two walk-in closets and a spa-like ensuite bathroom featuring dual vanities, a soaking tub, and separate shower. Two additional bedrooms share a full bathroom with a double vanity, offering both comfort and practicality. Step outside to discover a private backyard designed for relaxation and entertaining. An extensive covered patio serves as an "outdoor" living roomperfect for dining, lounging, or gatheringframed by mature landscaping and sweeping hillside vi

Map Location

Listing provided courtesy of Victoria Waldorf of Equity Union. Last updated . Listing information © 2025 SANDICOR.

john Doe

Mary Afzali

DRE# 02206927
Inquire Now
admin Real estate 9:00 AM - 5:00 PM 9:00 AM - 5:00 PM 9:00 AM - 5:00 PM 9:00 AM - 5:00 PM 9:00 AM - 6:00 PM 9:00 AM - 5:00 PM 9:00 AM - 5:00 PM https://static.royacdn.com/Site-1bceb400-429d-44f8-893a-6dc85e5715bb/Assets/Mary_Afzali_img_forAboutPage.jpg realtor # # # https://static.royacdn.com/Site-1bceb400-429d-44f8-893a-6dc85e5715bb/Assets/Mary_Afzali_img_forAboutPage.jpg